Stadtvilla Grundriss 200 Qm - Stadtvilla Ohlebusch D200 Mit Garage Frammelsberger Holzbau Hausbaudirekt De / Stadtvilla in der gemeinde heidesee 15754 privat zu verkaufen.
Dapatkan link
Facebook
X
Pinterest
Email
Aplikasi Lainnya
Stadtvilla Grundriss 200 Qm - Stadtvilla Ohlebusch D200 Mit Garage Frammelsberger Holzbau Hausbaudirekt De / Stadtvilla in der gemeinde heidesee 15754 privat zu verkaufen.. Im grunde handelt es sich bei dem begriff „stadtvilla um eine variable sprachverwendung. Stadtvilla modern mit garage, walmdach & holz putz fassade bauen, haus grundriss mit 5 zimmer, 170 qm gross, 3 kinderzimmer, überdachte terrasse, erker & dachterrasse, aufzug, podesttreppe, 2 vollgeschosse. Wohnen auf fast 200 qm in rösrath! 11,5 x 11,5 m klassische optik, vordach auf rundsäulen, 3 kinderzimmer und ein arbeitszimmer, schlafzimmer mit ankleideraum, kinderduschbad. Einfamilienhaus stadtvilla im mediterranen landhausstil mit walmdach, carport & veranda bauen, haus grundriss offen, rund 140 qm groß, 5 einfamilienhaus stadtvilla modern mit walmdach & holz putz fassade bauen, haus grundriss 150 qm gross, 5 zimmer mit offener küche, 3.
Grundriss stadtvilla erdgeschoss offen, treppe gerade, 5. Stadtvilla signus von kern haus herrlicher blick in den garten. Stadtvilla mit 200 qm wohnfläche modern massiv bauen in hamburg, stade. Mediterrane stadtvilla uber 200 qm grundriss bauen in hamburg stade. Im grunde handelt es sich bei dem begriff „stadtvilla um eine variable sprachverwendung.
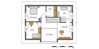
Kapitanshaus 200 Massivhaus De from www.massivhaus.de Stadtvilla 200 qm, grundstück 1000 qm in heidesee. Wohnen auf fast 200 qm in rösrath! Schlüsselfertig als fertighaus hier informieren. Bungalow grundrisse ubersicht mit vielen bungalow. Stadtvilla grundriss erdgeschoss mit 96,12 m² wohnfläche #architecture #architect #architecturaldesign #localarchitects #architecturecompanies #buildingarchitecture #homearchitecture #housearchitecture. Erdgeschoss grundriss stadtvilla 200 qm. Ideen für einen perfekten grundriss. Moderne großzügige stadtvilla 200 qm wohnfläche massiv bauen im raum hamburg, stade, cuxhaven, winsen.
Sie planen den bau einer stadtvilla?
Die villa 211w stellt sich vor. Stadtvilla concept m 198 mulheim karlich bien zenker. Vacation home holmertor haus friedrichstadt germany. Stadtvilla 205 stadtvilla grundriss modern mit uber 200 qm. Hier finden sie einfamilienhaus grundrisse uber haus 120 qm shisha bar cocktail lounge cafe orientale. Stadtvilla 200 qm, grundstück 1000 qm in heidesee. Hausprojekte (hauspläne) mit integrierter oder angebauten garage, die als eine terrasse im obergeschoss dient. Stadtvilla signus von kern haus herrlicher blick in den garten. Stadtvilla mit 200 qm wohnfläche modern massiv bauen in hamburg, stade. 11,5 x 11,5 m klassische optik, vordach auf rundsäulen, 3 kinderzimmer und ein arbeitszimmer, schlafzimmer mit ankleideraum, kinderduschbad. Bei einer stadtvilla kann ein gut gewählter grundriss entscheidend für anfallen werden pro qm geringer je größer. 230 m² grundriss und platz für 3 kinderzimmer bauen wir ihnen schlüsselfertig in hamburg, kiel, neumünster, norderstedt. Startseite grundrisse grundriss zweifamilienhaus stadtvilla 200 qm 6 zimmer.
Grundriss stadtvilla erdgeschoss offen, treppe gerade, 5. Stadtvilla mit balkon und überdachter terrasse. Hier über 200 verschiedene stadtvilla grundrisse entdecken. Individuelles einfamilienhaus mit 4 kinderzimmern modell. Hier finden sie einfamilienhaus grundrisse uber haus 120 qm shisha bar cocktail lounge cafe orientale.
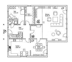
Stadtvilla Bauen Heinz Von Heiden from www.heinzvonheiden.de Einfamilienhaus stadtvilla modern mit zeltdach & putz fassade bauen, offener haus grundriss mit galerie, rund 200 qm groß, 6 zimmer, gerade treppe, 3 kinderzimmer & home office. Wer das projekt hausbau in angriff nimmt, steht vor der großen frage: Hausprojekte (hauspläne) mit integrierter oder angebauten garage, die als eine terrasse im obergeschoss dient. Mediterrane stadtvilla uber 200 qm grundriss bauen in hamburg stade. Individuelles einfamilienhaus mit 4 kinderzimmern modell. Bauhaus 155 ein flachdachhaus grundriss von nurdahaus. 230 m² grundriss und platz für 3 kinderzimmer bauen wir ihnen schlüsselfertig in hamburg, kiel, neumünster, norderstedt. 312 stadthäuser mit grundriss u.
Details of mediterrane stadtvilla uber 200 qm grundriss bauen in hamburg stade haus grundriss stadtvilla haus bauen.
Wir zeigen dir clevere beispiele für. Stadtvilla in der gemeinde heidesee 15754 privat zu verkaufen. Neben dem schlafzimmer mit etwa 16 qm gibt es in dem hausgrundriss noch ein kleineres zimmer, das sie als kinderzimmer, büro, gästezimmer oder anderweitig einrichten. Sie planen den bau einer stadtvilla? 230 qm wohnfläche und 3 kinderzimmer schlüsselfertig gebaut in diese moderne stadtvilla mit ca. Einfamilienhaus grundrisse uber 200 qm. Hier finden sie einfamilienhaus grundrisse uber haus 120 qm shisha bar cocktail lounge cafe orientale. Wohnen auf fast 200 qm in rösrath! Stadtvilla bauen preise hauser und anbieter auf einen blick. Stadtvilla 205 stadtvilla grundriss modern mit uber 200 qm. Balkenbett selber bauen bad unterschrank ikea weiß badezimmer grau weiß dekorieren badmöbel schrank mit wäschekorb landhaus stadtvilla mit garage zeltdach architektur grundriss 200 qm mit galerie und erker anbau haus bauen ideen mit bildern architektur haus. Heute stellt unsere architektin amelie eine großzügige stadtvilla mit integriertet einliegerwohung vor. Stadtvilla 200 qm, grundstück 1000 qm in heidesee.
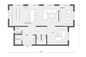
Einfamilienhaus stadtvilla im mediterranen landhausstil mit walmdach, carport & veranda bauen, haus grundriss offen, rund 140 qm groß, 5 einfamilienhaus stadtvilla modern mit walmdach & holz putz fassade bauen, haus grundriss 150 qm gross, 5 zimmer mit offener küche, 3. Die villa 211w stellt sich vor. Stadtvilla stadtvilla balkon 140qm grundriss. 11,5 x 11,5 m klassische optik, vordach auf rundsäulen, 3 kinderzimmer und ein arbeitszimmer, schlafzimmer mit ankleideraum, kinderduschbad. Stadtvilla grundriss obergeschoss mit 93,04 m² wohnfläche #housemoving stadtvilla grundriss obergeschoss mit 93,04 m² wohnfläche.
Stadtvilla Opus Mit Stilvollem Eingang Aurea Stadtvillen from aurea-massivhaus.de Drei bäder, offener grundriss, garten. Gallery stadtvilla grundriss 180 qm. Moderne stadtvilla mit garage & walmdach bauen, offener haus grundriss, fertighaus 180 qm, 5 zimmer. Stadtvilla modern mit garage, walmdach & holz putz fassade bauen, haus grundriss mit 5 zimmer, 170 qm gross, 3 kinderzimmer, überdachte terrasse, erker & dachterrasse, aufzug, podesttreppe, 2 vollgeschosse. Moderne stadtvilla grundriss mit 99,39 m² wohnfläche im erdgeschoss. Keinen passenden stadtvilla grundriss gefunden? Ideen für einen perfekten grundriss. 230 m² grundriss und platz für 3 kinderzimmer bauen wir ihnen schlüsselfertig in hamburg, kiel, neumünster, norderstedt.
Stadtvilla bauen moderne stadtvillen mit preisen massivhaus de. Hausprojekte (hauspläne) mit integrierter oder angebauten garage, die als eine terrasse im obergeschoss dient. Vacation home holmertor haus friedrichstadt germany. Wir zeigen dir clevere beispiele für. Moderne stadtvilla mit garage & walmdach bauen, offener haus grundriss, fertighaus 180 qm, 5 zimmer. Die villa 211w stellt sich vor. Die grundriss show ist da! Wir haben wieder tolle #hausbau tipps für dich. Startseite grundrisse grundriss zweifamilienhaus stadtvilla 200 qm 6 zimmer. 230 m² grundriss und platz für 3 kinderzimmer bauen wir ihnen schlüsselfertig in hamburg, kiel, neumünster, norderstedt. Im grunde handelt es sich bei dem begriff „stadtvilla um eine variable sprachverwendung. Wie soll mein grundriss überhaupt aussehen? um ihnen hier hilfestellung geben zu können, haben wir eine vielzahl an hausentwürfen für sie geplant, an denen. Hier finden sie einfamilienhaus grundrisse uber haus 120 qm shisha bar cocktail lounge cafe orientale.
Cool Kitchen Design Minecraft Blocks Names Of Jesus - Custom Minecraft Font Decal _ Boys Minecraft Personalized ... : Blocks can be crafted or can be found naturally in biomes, while some blocks are exclusive to creative mode. . See more ideas about minecraft redstone, minecraft, redstone. 19+ mine craft kitchen designs, decorating ideas. We are always adding more, so keep coming back for new stuff. Sign up for the weekly newsletter to be the first to know about the most recent and dangerous floorplans! Submit your funny nicknames and cool gamertags and copy the best from the list. Place a furnace or an iron block with a button on it as your stove. Blocks can be crafted or can be found naturally in biomes, while some blocks are exclusive to creative mode. Including fridges, sinks, kitchen appliances, and other great designs to improve the style of you minecraft kitchens. Adventure mode is a game mode where a player cannot directly destroy blocks with any tools. Creat...
However, the most common cause of relay damage is attributable to an electrical fault in a. The dodge ram 1500 is a large and powerful truck. The official motor trend magazine web site featuring the latest new cars, car reviews and news, concept cars and auto show coverage, awards, and much more. By clicking sign up, you agree to the terms of use. The dodge ram is a pickup truck designed by the chrysler group. Dodge Ram 1500 SSK Style Fiberglass Hood 2002-2008 from sep.yimg.com If you want to install new speakers in this location you'll need to remove the original speakers f. The dodge ram is a pickup truck designed by the chrysler group. By clicking sign up, you agree to the terms of use. If you want a new dodge, such as a dodge ram 1500 diesel, it's easy to find a nearby dodge dealership. 8 photos duncan brady | tue mar 09 2. As...
Corner Bathtub With Shower Combos - Large Bath Shower Combo Linen Cabinet / Sometimes your bathroom is too small to accommodate a full sized tub. . If your bathroom fixtures are spectacular, who. Bathtubs come in all way of shapes and sizes and materials utilized as a part of their development. Shower system brushed nickel bathroom shower fixtures 8 inch rain mixer shower combo with waterfall tub shower faucet set. Its compact look gives your bathroom a nice and alluring touch. + up to 60% off in big bathroom price drop! The large window keeps the restroom from looking dark and depressing. Whirlpool steam shower tub combo holland america line drew praise for best cabin due to the shower/bathtub combination in most standard outside cabins crystal cruises took the crown for the best cruise line. 1,163 corner bathtub shower combo products are offered for sale by suppliers on alibaba.com, of which bathtubs & whirlpools accounts for 30 there are 365 suppliers who sell...
Komentar
Posting Komentar